The sky is the limit when tall ceilings meet compact floor plans. The homes featured in this post sacrificed some of their impressive height for the sake of gaining more usable square footage - and the results are pretty fun to admire. Many of these interiors take the traditional approach by placing a bedroom in the lofted area, but others break the mold by using their newfound second floor for other purposes like a home office or library. While loft living isn't a great solution for the stair-weary, it's still a neat option for people who want to put their extra vertical space to work.

Designed to mimic the freedom and playfulness of a treehouse, this interior makes great use of its impressive 4-meter-tall ceilings. A comfortable bedroom occupies the loft space, leaving plenty of room for functional areas like the kitchen and hallway beneath. The staircase is compact but just the right depth to contain useful storage cabinets.

The living room enjoys the full atrium-like effect of the apartment. Tall windows brighten the interior upstairs and down. Accent colors tend toward the darker side of the spectrum, but the ample natural light makes it work beautifully.

Between the windows remains a strip of wall just wide enough for a tiny dining table and television. Not an inch of space is wasted.

Just check out this smart layout! A cabinet in the hallway hides the laundry space, just around the corner from the bathroom. The kitchen is small but contains all the necessities - the white surfaces banish shadows that might feel oppressive as part of the living room.

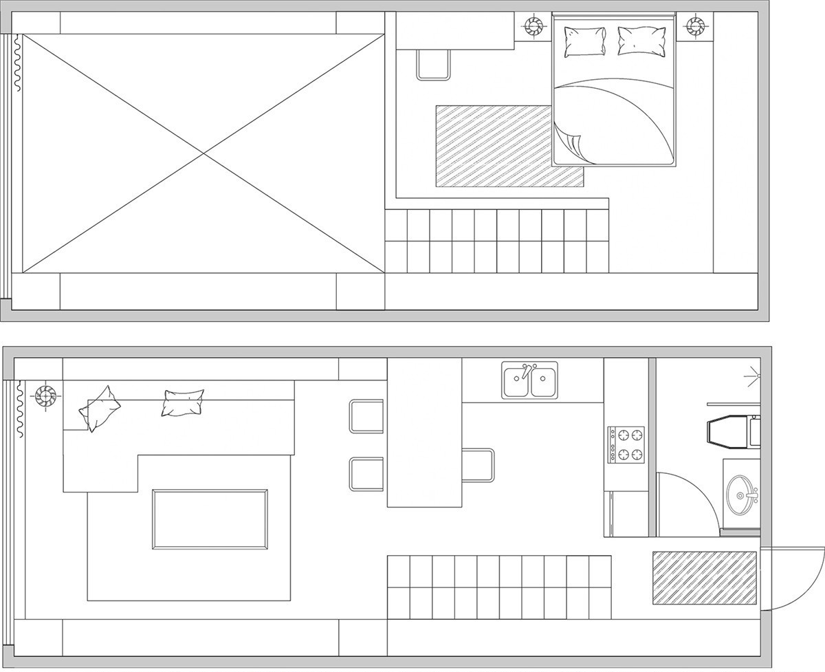
Upstairs decor remains much more casual and homey. It's clearly a space to relax, reflect, and decompress at the end of the day. The head of the bed aligns perfectly with the window to allow a view of the outdoors.

The position of the loft bedroom provides plenty of privacy on its own, but the shuttered doors surely help to diffuse a bit of the noise and light without disrupting airflow – convenient when guests are crashing on the sofa downstairs.

Of course, when you're dealing with a room this tall, pendant lamps can make all the difference. These pendants from Sandra Lindner feature beautiful copper accents toward the top, so they look just as gorgeous from above as they do from below.

Unlike most living spaces that include a loft, this one is part of a freestanding home rather than an apartment – a beautiful example of the "tiny house movement". Downsized living spaces are praised as a way to minimize, clarify, and eliminate some of the complexities of modern life. This home accomplishes all of this without sacrificing an ounce of style.

The layout is heavily linear, transitioning from the living room to the kitchen and finally leading to the entrance. A wooden ladder leads up to the lofted bedroom.

While the living room enjoys the full height of the building, the dining room and kitchen occupy a cozier spot beneath the loft. Modern pendant lights hang low to the table to create a more intimate atmosphere.

Contrast plays a key role. Many of the cabinets remain dark to prevent the appearance of crowding and to hide the shadows within the open shelving above – sometimes using dark colors can make the rest of the interior feel brighter.

The bedroom feels wonderfully cozy beneath its black vaulted ceiling. One group of cushions serves as the bed, and the other pulls double duty as seating or a guest bed.

This space is part of an interesting mobile housing project titled WoodBox3x6, where every square meter of the ultra-compact interior realizes its full functionality and purpose. A realized version of this concept would include solar panels and wind generators, passive water collection, and other environmentally friendly features.

Although this home is packed with interesting features, the loft solutions are worth admiring. This home actually features two lofts – the library, featured here, is accessible from an extremely streamlined staircase.

A wider staircase provides a more comfortable route to the lofted bedroom. Storage cubbies, a full-size closet, and a small kitchenette all take advantage of the extra space.

Dramatic panels give this loft interior a very cohesive aesthetic from top to bottom. It's natural, warm, and has a distinctive vintage undertone that really brings out the best of its modern side. An ultra-functional furniture arrangement ensures that the residents are able to work and play without obstruction – just as if it were a conventional apartment.

Natural materials and low-profile furniture keep the interior feeling light and casual – a versatile aesthetic for a compact home where formality might feel too restrictive.

In an interior otherwise dominated by warm tones, the blue portion of the sectional draws the eye with temperature contrast.

Without room for a guest bed, a spacious sofa like this one pays for itself. Sofas with armrests are more comfortable for day-to-day lounging but this one combines the best of both worlds.

The wires in the foreground support the staircase. The form is industrial but the brass-colored coating lends a touch of luxury.

Omitting the staircase risers allows sunlight to penetrate deep into the home. There's no obstruction, no shadows.

And, even though there's not much room for other objects beneath the stairs, this bicycle has found quite a nice home there. Other residents might use this space for a sideboard cabinet or small desk.

Here's a view of the tiny office on the loft level. Although there isn't a clear shot of the bed, this little area is inspiring too.

This interior uses dynamic angles to instill a sense of movement and energy, overcoming one of the major boundaries that a carefully tailored compact home usually faces. A variety of planes not only disperses the concentration of decor for a better sense of balance but it also increases the perceived height of the already impressive ceiling.

The master bedroom actually occupies the main floor of the building while an office enjoys the loft – an unconventional but very effective choice.

Guests can dine or sleep on the wide bench seats that surround the dining table. Skip to the end of this section for a better idea of the multipurpose nature of each space.

Although more difficult to accomplish from an architectural standpoint, "floating" lofts are visually powerful. This interior places the staircase against the wall and suspends the bedroom above the living area as its own little island. Glass bannisters preserve the line of sight without compromising on safety – a very light look.

The low-profile bed allows for a clean line of sight in all directions, to the double-height window in the atrium to the unique balcony to the left.

And finally, here's a look at a space efficient interior with the decorative appeal of a truly luxurious home. The sophisticated palette of high-end materials could make residents forget they're in a compact home. This layout would work wonderfully as a guest suite within a larger residence, using the same amount of space that others might dedicate to a home theater or ordinary guest bedroom.






