4 Super Tiny Apartments Under 30 Square Meters [Includes Floor Plans]

Hanna
Published on: February 15, 2016

Small space

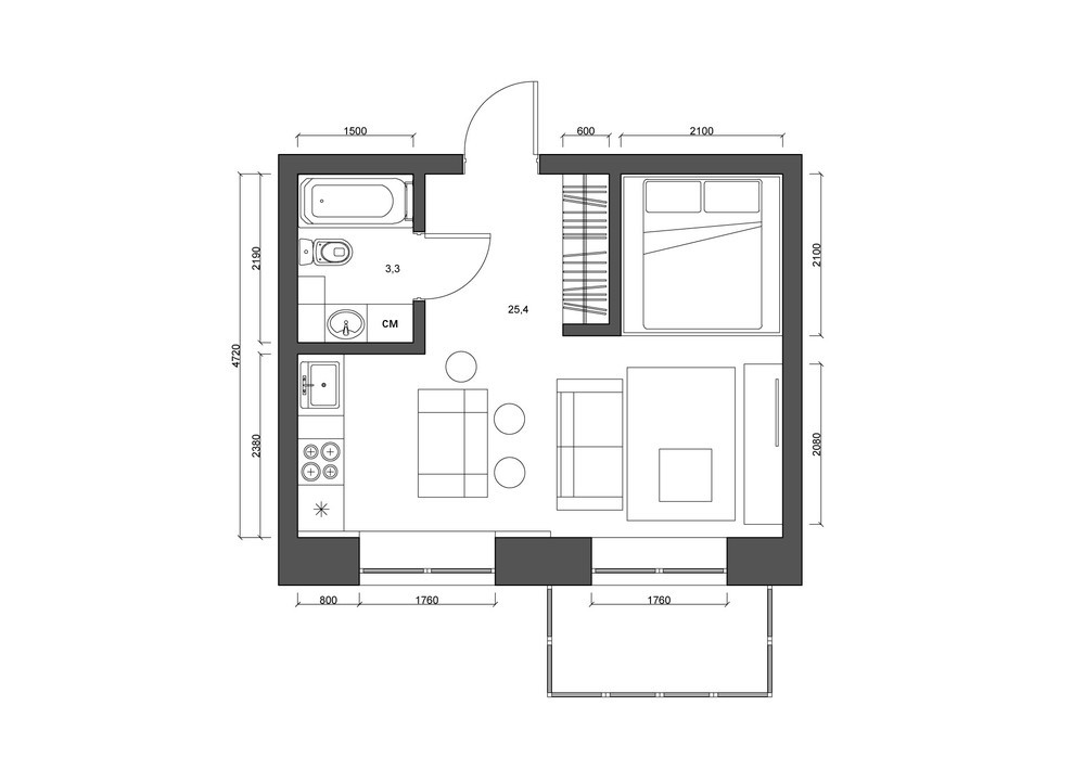
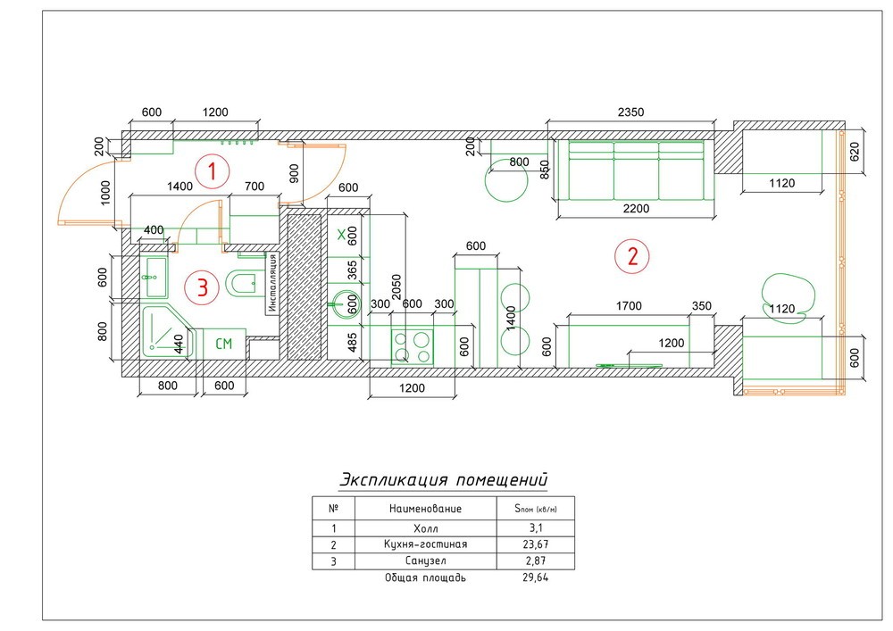
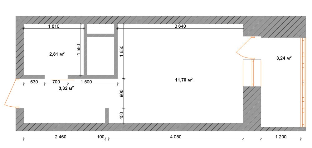
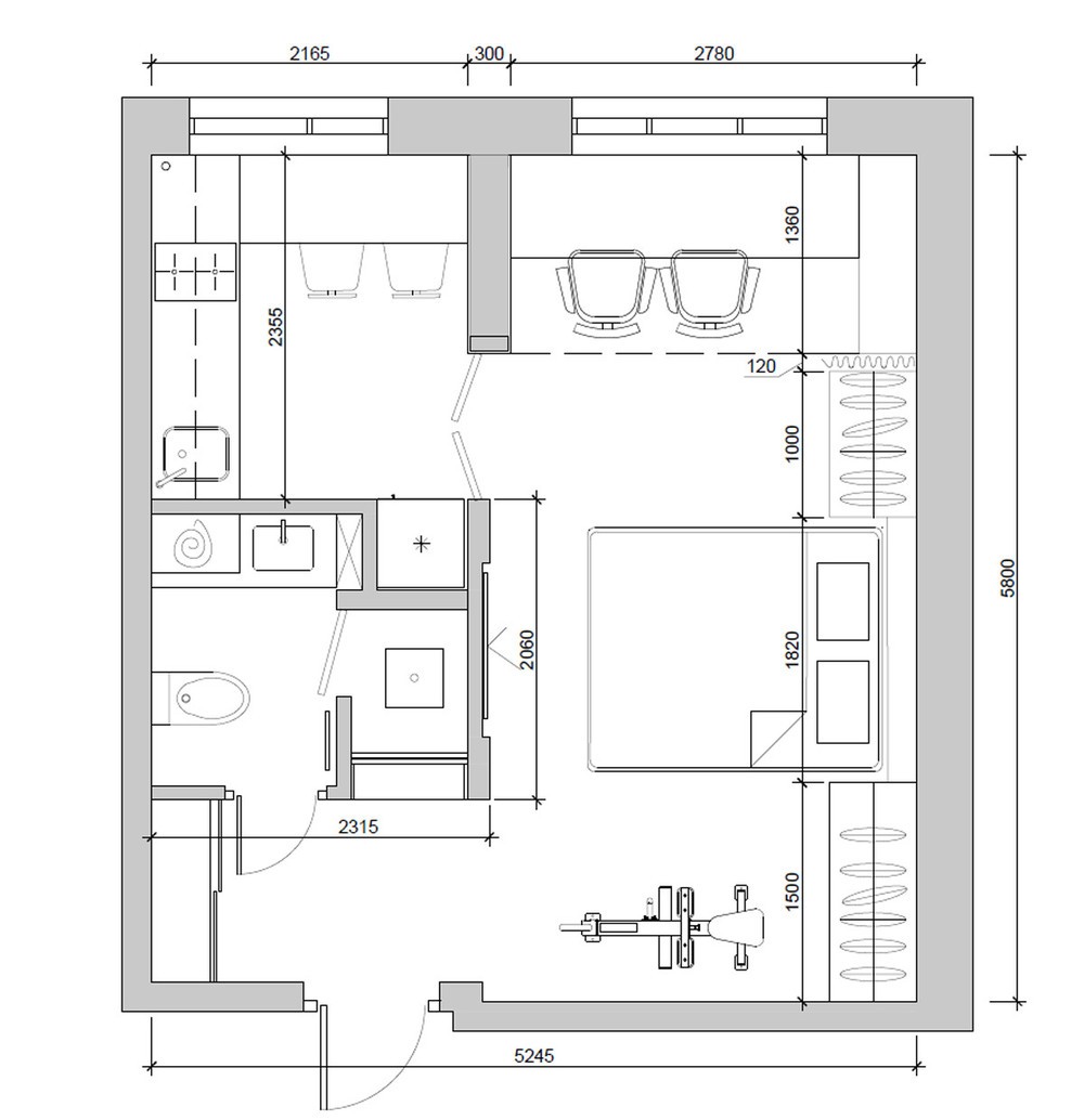
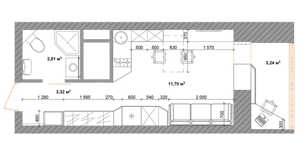
Small apartments present several unique structural limitations – lack of storage, insufficient lighting, and cramped floor plans are just a few of the most common restrictions. The four apartments highlighted in this post turn those obstacles into sure strengths. They each carve out their own distinctive styles, no doubt influenced by the requirements imposed by their compact floor plans. From dressing up windows to coordinating color themes across a studio floor plan, these inspiring spaces offer a variety of techniques to try. If you're working with a home less than 30 square meters in size, this post is for you.

Share this story

Subscribe to our newsletter

Join a growing community of over 20,000 design enthusiasts and get exclusive insights, insider content, and hand-picked articles delivered to your inbox weekly.

Top Hits