4 Inspiring Home Designs Under 300 Square Feet (With Floor Plans)

Hanna
Published on: January 28, 2016

Floor plans
Small space

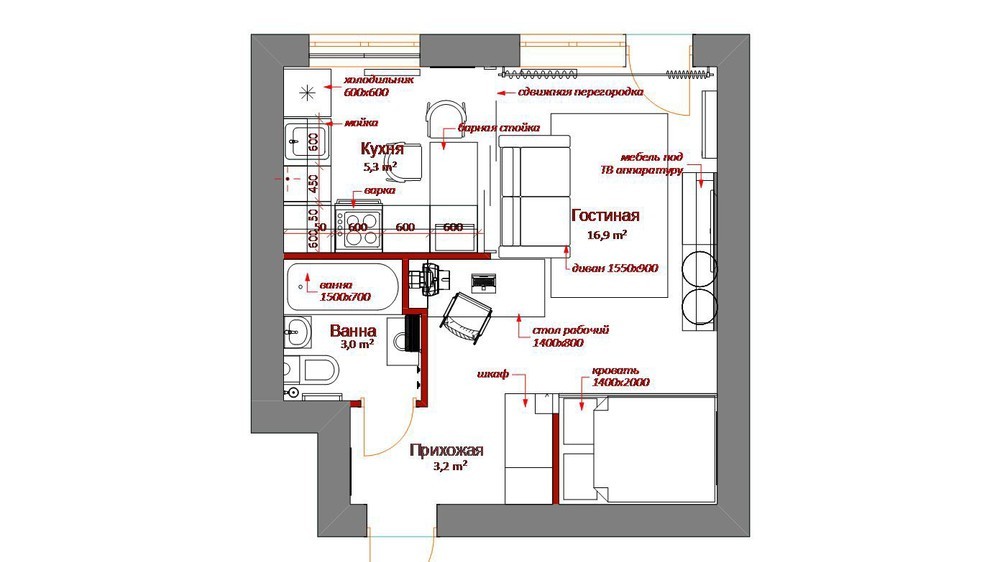
Are you looking for ways to make the most of your small floorplan? Each of these four homes occupies less than 300 square feet (27 square meters) but packs an incredible amount of personality, color, and inspiration into each space. You'll see clever storage solutions and multipurpose furniture, smart organization tactics and plenty of must-try DIY ideas. Sure, small spaces might require a few sacrifices but style definitely doesn't have to be one of them. These compact interior designs demonstrate how even the most restrictive spaces can offer luxurious amenities and comfort - let's take a look!

Share this story

Subscribe to our newsletter

Join a growing community of over 20,000 design enthusiasts and get exclusive insights, insider content, and hand-picked articles delivered to your inbox weekly.

Top Hits